
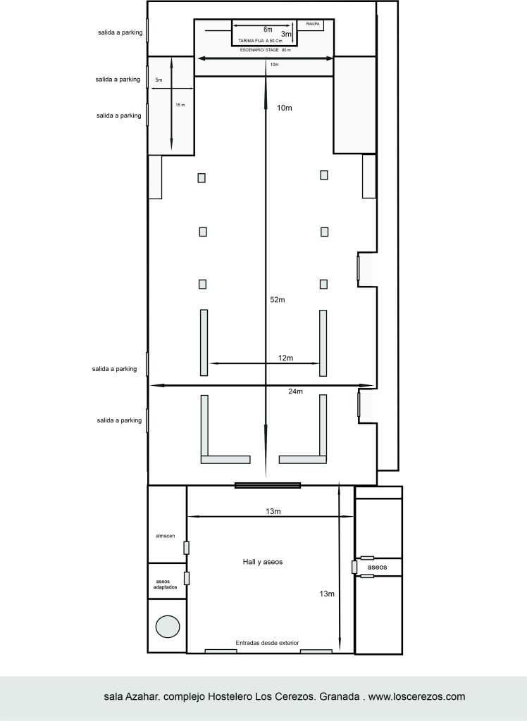
La Sala está equipada con Hall de entrada, aseos, aire acondicionado, calefacción, sistema de renovación de aire, escenario, camerinos, megafonía, sonido P.A , sonido ambiental, luminotecnia robotizada. Todo esta adaptado para personas disminuidas físicas. Tiene todas las salidas a exteriores y acceso al escenario a nivel de aparcamiento, para facilitar la carga y descarga de equipos al escenario.

Para conocer el Rider Tecnico de Sonido P.A y equipamiento de escenario no dude en preguntar, y le informaremos con el estado actualizado de toda la instalación.
Planos



Acceso al escenario a nivel de calle para una fácil carga y descarga de equipos y equipamiento eventual.


Para consultar información, precios y disponibilidad, no dude en contactar al Tel: 958 30 00 04 o al correo: hotel@loscerezos.com
Puede ampliar información sobre el complejo hostelero en la web:
